Skip to content

GeoHimachal

  • About Us
  • Home
  • Himachal History Digital Archive
  • GeoVirtual World
  • HP Data Insights
  • GISExpand
    • Normal Maps
    • Thematic Maps
    • Slope Maps
  • In-Depth ReadsExpand
    • Articles
    • Kangra Agriculture System
    • Case Studies
    • Current Affairs
  • HP General KnowledgeExpand
    • Districts Geography
    • H.P Geography
    • H.P History
    • H.P Politics
    • H.P Culture
    • Disaster
    • People of Himachal
    • H.P Economy
    • MCQ Geography
  • ExamsExpand
    • Current Affairs 2024-25
    • Education Specific Current Affairs
    • Important Organisation
    • Foundational Course ,Himachal Pradesh General Knowledge.
    • Evolution of Education in India
    • Free Course
  • Contact Us
GeoHimachal
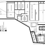
  • Layout Map of Kangra fort
    H.P Culture

    Preliminary Evidence for a Possible Monastic Complex within the Kangra Fort, District Kangra, Himachal Pradesh.

    Title                                         Preliminary Evidence for a Possible Monastic Complex within the Kangra Fort, District Kangra, Himachal…

    Read More Preliminary Evidence for a Possible Monastic Complex within the Kangra Fort, District Kangra, Himachal Pradesh.Continue

  • Proto History of Himachal Pradesh.
    People of Himachal

    Proto-History of Himachal Pradesh

    Proto History of Himachal Pradesh is closely linked with Proto History of South Asia. It…

    Read More Proto-History of Himachal PradeshContinue

  • Feasibility Study of Pump Storage Hydropower Plant on beas River.
    Articles

    Pumped storage hydropower and what the Beas River study tells us.

    Read Full Report of prepare by Geohimachal here. India is rapidly increasing electricity generation from…

    Read More Pumped storage hydropower and what the Beas River study tells us.Continue

  • Pump Storage Projects
    H.P Economy | Articles

    Hydro Pumped Storage Project Potential in Himachal Pradesh.

    India’s Nationally Determined Contribution (NDC) targets, is to reduce the emission intensity of its Gross…

    Read More Hydro Pumped Storage Project Potential in Himachal Pradesh.Continue

  • Economy of Kangra , Himachal Pradesh.
    H.P Economy

    Economic System of Mid 19th Century of Kangra, Himachal Pradesh.

    British took over the charge of Kangra in 1846. British surveyed the Land , fixed…

    Read More Economic System of Mid 19th Century of Kangra, Himachal Pradesh.Continue

  • Hydro Projects of Himachal Pradesh and Altitude
    Articles

    How Altitude Shapes Hydropower Capacity in Himachal Pradesh.

    Altitude–capacity relationships in Himalayan hydropower systems are often assumed to be direct and deterministic, but…

    Read More How Altitude Shapes Hydropower Capacity in Himachal Pradesh.Continue

  • Hydro Electricity Sector of Himachal Pradesh
    Uncategorized

    Hydroelectricity Landscape of Himachal Pradesh.

    Himachal Pradesh has immense energy Generation Potential. Directorate of Energy is nodal Department controlling the…

    Read More Hydroelectricity Landscape of Himachal Pradesh.Continue

  • Climate-Controlled differential denudation, a new Threat to Himalayan.
    Articles

    Climate-Controlled differential denudation, a new Threat to Himalayan.

    A new climate trend of dry, snowless winters preceded by intense monsoon rainfall is altering…

    Read More Climate-Controlled differential denudation, a new Threat to Himalayan.Continue

  • Uncategorized

    Himachal Pradesh Geography Through Maps by Pardeep Kumar.

    It is very proud movement for our Team that our Book is being accepted by…

    Read More Himachal Pradesh Geography Through Maps by Pardeep Kumar.Continue

  • Snowless winter in Himalayan and fire incidents
    Articles

    Snowless Himalayan Winter. Is it new Normal ?

    Himachal Pradesh along with other Himalayan state is set to witness another snowless winter. The…

    Read More Snowless Himalayan Winter. Is it new Normal ?Continue

  • Landforms of Himachal Pradesh
    Articles

    Landform of Himachal Pradesh

    Landforms play important role in understanding earths Geological Past. Scientist looked at Landform to understand…

    Read More Landform of Himachal PradeshContinue

  • Landform Evolution of Himachal Pradesh
    Articles

    Landform of Himachal Pradesh.

    The evolution of landforms is an ongoing and dynamic process, shaped by various natural and…

    Read More Landform of Himachal Pradesh.Continue

  • Disaster

    Himalaya including, Himachal may lost Glacier by 2050.

    A Natural Climate change study named “Peak glacier extinction in the mid-twenty-first Century” predicts that…

    Read More Himalaya including, Himachal may lost Glacier by 2050.Continue

  • H.P Various Exams

    Syllabus for the Exam of Patwari to be Conducted by HPRCA,2025

    Part-A (Syllabus up to 10+2), Updated on 20/12/2025. I. SOCIAL SCIENCE i. Indian History (a)…

    Read More Syllabus for the Exam of Patwari to be Conducted by HPRCA,2025Continue

  • Kangra Agriculture System

    Kuhls of Kangra. A GIAHS Assessment.

    The Kuhl Irrigation System of Kangra: An Assessment of Himalayan Agricultural Heritage Using the GIAHS…

    Read More Kuhls of Kangra. A GIAHS Assessment.Continue

Page navigation

1 2 3 … 8 Next PageNext

Book

Himachal Pradesh Geography Through Maps

Himachal Pradesh Geography Through Maps - Front Cover

Buy on Amazon

Categories

  • Case Studies
  • Slope Maps
  • Disaster
  • Kangra Agriculture System
  • Districts Geography
  • H.P Politics
  • Articles
  • MCQ Geography
  • H.P Geography
  • H.P Economy
  • H.P Culture
  • People of Himachal
  • Current Affairs
  • H.P Various Exams
  • Education Specific Current Affairs
  • Current Affairs 2024-25
  • Important Organisation
  • Thematic Maps
  • Normal Maps
  • Uncategorized

Latest Post

  • Preliminary Evidence for a Possible Monastic Complex within the Kangra Fort, District Kangra, Himachal Pradesh.
  • Proto-History of Himachal Pradesh
  • Pumped storage hydropower and what the Beas River study tells us.
  • Hydro Pumped Storage Project Potential in Himachal Pradesh.
  • Economic System of Mid 19th Century of Kangra, Himachal Pradesh.
  • Preliminary Evidence for a Possible Monastic Complex within the Kangra Fort, District Kangra, Himachal Pradesh.
  • Proto-History of Himachal Pradesh
  • Pumped storage hydropower and what the Beas River study tells us.
  • Hydro Pumped Storage Project Potential in Himachal Pradesh.
  • Economic System of Mid 19th Century of Kangra, Himachal Pradesh.

© 2026 GeoHimachal - WordPress Theme by Kadence WP

  • About Us
  • Home
  • Himachal History Digital Archive
  • GeoVirtual World
  • HP Data Insights
  • GIS
    • Normal Maps
    • Thematic Maps
    • Slope Maps
  • In-Depth Reads
    • Articles
    • Kangra Agriculture System
    • Case Studies
    • Current Affairs
  • HP General Knowledge
    • Districts Geography
    • H.P Geography
    • H.P History
    • H.P Politics
    • H.P Culture
    • Disaster
    • People of Himachal
    • H.P Economy
    • MCQ Geography
  • Exams
    • Current Affairs 2024-25
    • Education Specific Current Affairs
    • Important Organisation
    • Foundational Course ,Himachal Pradesh General Knowledge.
    • Evolution of Education in India
    • Free Course
  • Contact Us